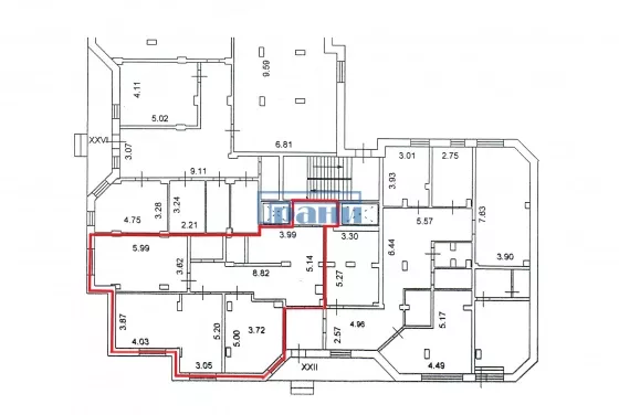
Сдается коммерческая, 105.9 кв.м., -1/17 эт
| Площадь, кв.м. | 105.9 |
| Арендная плата в месяц | 74 130 |
|---|---|
| Цена кв.м. в год | 8 400 |
| Тип этажа | Цокольный |
| Коммунальные услуги включены | Нет |
| Возможное назначение | Салон красоты |
| Тип здания | встроенное помещение |
| Тип парковки | На улице |
| Вход cian (avito) | Общий со двора |
| Тип аренды | Прямая |
| Ремонт | Офисная |
| Планировка cian | Кабинетная |
| Планировка avito | Кабинетная |
| Отделка помещения коммерческая | Офисная |
| Право собственности | Собственник |
| Залог (avito) | 1 месяц |
| Удаленность от дороги (авито) | Вторая линия и дальше |
| Тип коммерческой | Помещение свободного назначения |
| Этаж | -1 |
| Этажность | 17 |
| Класс здания | B |
| Населенный пункт | Курск |
|---|---|
| Район города | Центральный |
| Улица | улица Радищева |
| Номер дома | 20 |
Предлагаем в аренду помещение свободного назначения, общей площадью 106 кв.м., по адресу: г. Курск, ул. Радищева, д. 20.
ЛОКАЦИЯ:
Помещение расположено в центральной части города;
Пересечение улиц Радищева, Почтовой и Марата;
В шаговой доступности от ключевых административных, финансовых,
образовательных учреждений;
Паркинг платный охраняемый наземный открытый,
а так же всегда есть бесплатная свободная парковка на прилегающих улицах;
Остановки общественного транспорта - 250 м от входа.
Преимущества и характеристики помещения:
Помещение в цокольном этаже;
Общий вход с паркинга;
4 кабинета;
Полноценные окна во всех кабинетах;
Два сан/узла, канализация (прямой сток);
Отопление газовое, котельная на крыше ЖК;
Высота потолков - 2,7 м.;
Пожарная сигнализация;
Подсобные и бытовые помещения;
Доступ к помещению 24/7.
Возможное использование: салон красоты, обучение, офис компании.



























