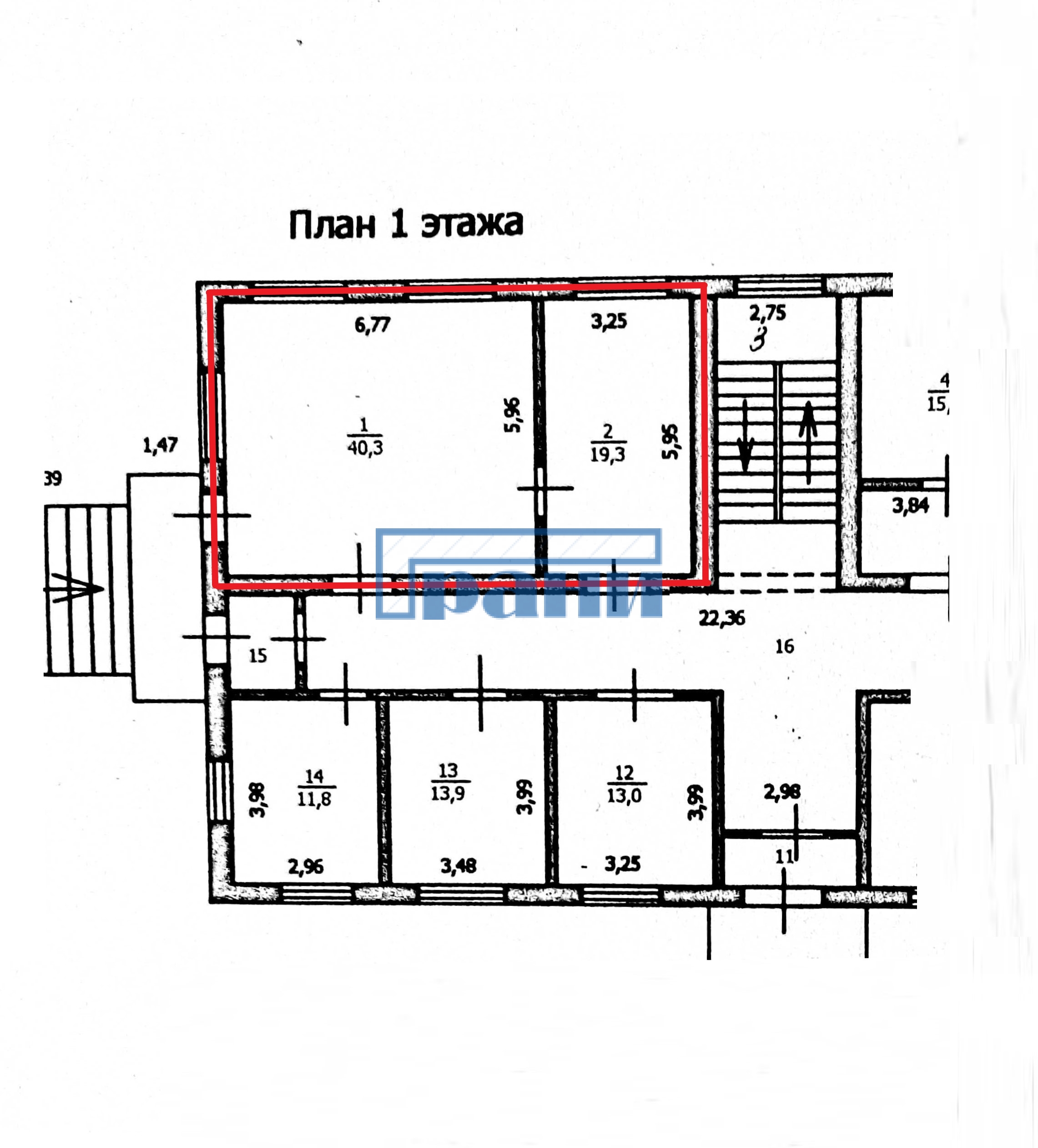
Сдается коммерческая, 59.6 кв.м., 1/2 эт
Обзор№ - 803
| Площадь, кв.м. | 59.6 |
| Арендная плата в месяц | 40 000 |
|---|---|
| Цена кв.м. в год | 8 054 |
| Коммунальные услуги включены | Нет |
| Тип здания | Административное здание |
| Тип парковки | На улице |
| Вход cian (avito) | Общий с улицы |
| Тип аренды | Прямая |
| Ремонт | Офисная |
| Планировка cian | Кабинетная |
| Планировка avito | Кабинетная |
| Отделка помещения коммерческая | Офисная |
| Право собственности | Собственник |
| Залог (avito) | 1 месяц |
| Тип коммерческой | Офисное помещение |
| Этаж | 1 |
| Этажность | 2 |
| Класс здания | B |
Адрес
| Населенный пункт | Курск |
|---|---|
| Район города | Центральный |
| Улица | улица Школьная |
| Номер дома | 1 |
Сдается в аренду офисное помещение площадью 59,6 кв.м по адресу: г Курск, ул Школьная, д 1
ЛОКАЦИЯ:
Хороший пешеходный и автомобильный трафик;
Центральный район города (рядом Мега Гринн, Европа 10, банки, учебные заведения, аптеки, почта, фитнес клуб Сокол);
До ближайшей остановки общественного транспорта 500 м;
Своя парковка, а также не запрещена остановка у бордюра.
Характеристика помещения:
Помещение на 1 этаже в административном здании;
Отдельный вход с улицы;
Общий вход, запасной выход;
Независимое газовое отопление;
Возможно предоставление юридического адреса;
Интернет от нескольких провайдеров;
Разрешенная мощность 6 кВт.





















